Listed by Katherine L Petrey of Howard Hanna (katherinepetrey@howardhanna.com,330-573-1261)

Listing Sold by Indeed Realty, LLC
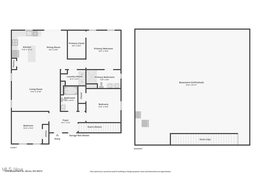
Welcome to your brand new dream home, built in 2025! This highly sought-after ranch-style residence offers the perfect blend of modern convenience and timeless design. Step inside to a bright, open floor plan ideal for both daily living and entertaining. The heart of the home is a spacious eat-in kitchen featuring sleek stainless steel appliances, a large center island perfect for casual gatherings, and a deep stainless farmhouse sink. A generous pantry provides ample storage, while sliding glass doors lead you to a future deck or patio-ready for your vision. A split bedroom design is featured off the large entrance way. Both bedrooms offer spacious closet space and access the front hall guest bath with tub shower combo. Convenience is key with a first-floor laundry room located just off the kitchen and near the private primary suite. The suite boasts a 6x11 walk-in closet and a luxurious en suite bathroom complete with double sinks and an oversized walk-in shower. The full lower level offers a blank canvas ready for your finishing touches-plumbed for a third bathroom and perfect for adding a family room, gym, or guest suite if desired. Additional highlights include a two-car attached garage and a freshly seeded yard, awaiting your personal landscaping ideas. Don't miss your chance to move in and make this beautiful new home truly your own! Estimated utilities; Enbridge Gas $80/month Ohio Edison $45/month Water and Sewer Service - Lakemore

Listing Tools

Property Details of 1379 Wood Fern Drive

Property Details

Interior Features

Community

Map Location

Based on information submitted to MLS Now as of January 16, 2026 7:51 PM EST . All data is deemed reliable but is not guaranteed accurate by the MLS. All information should be independently reviewed and verified for accuracy. Listing information is provided exclusively for consumers’ personal, noncommercial use and may not be used for any purpose other than to identify prospective properties consumers may be interested in purchasing.

Hi there! How can we help you?

Contact us using the form below or give us a call.

Send Us A Message:

I agree to be contacted by The Marrali-DeSantis Group | Howard Hanna Real Estate via call, email, and text for real estate services. To opt out, you can reply 'stop' at any time or reply 'help' for assistance. You can also click the unsubscribe link in the emails. Message and data rates may apply. Message frequency may vary. Privacy Policy.

Do not fill in this field:

This site is protected by reCAPTCHA and the Google Privacy Policy and Terms of Service apply.

Hi there! How can we help you?

Contact us using the form below or give us a call.

Send Us A Message:

Do not fill in this field:

This site is protected by reCAPTCHA and the Google Privacy Policy and Terms of Service apply.

Hi there! How can we help you?

Contact us using the form below or give us a call.

Send Us A Message:

Do not fill in this field:

This site is protected by reCAPTCHA and the Google Privacy Policy and Terms of Service apply.

Do not fill in this field:

This site is protected by reCAPTCHA and the Google Privacy Policy and Terms of Service apply.

Do not fill in this field:

This site is protected by reCAPTCHA and the Google Privacy Policy and Terms of Service apply.

Do not fill in this field:

This site is protected by reCAPTCHA and the Google Privacy Policy and Terms of Service apply.

$

Do not fill in this field:

This site is protected by reCAPTCHA and the Google Privacy Policy and Terms of Service apply.