Listed by Amy K Margiotti of Howard Hanna (amymargiotti@howardhanna.com,440-221-8657)

Listing Sold by Howard Hanna
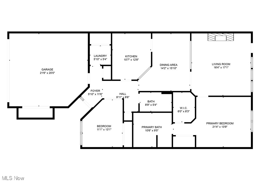
Welcome to this sparkling clean and well-maintained 2 bedroom, 2 bath condo in Towne Center Community Campus, a sought-after low-maintenance 55+ community in the heart of Avon Lake! Step inside the light-filled foyer and you'll immediately notice the fresh neutral paint and new carpet throughout most of the condo. The kitchen features crisp white cabinets, gorgeous granite countertops, and plenty of storage and prep space-perfect for cooking up your favorite meals. The adjacent dining room is spacious enough for a large table and hutch, making it ideal for entertaining. The open concept floor plan flows into the inviting living room, highlighted by a cozy gas fireplace and a wall of windows overlooking serene greenspace. Step out onto the private patio to enjoy your morning coffee or relax in the evenings. The primary suite is a true retreat with two closets (including a walk-in) and a large ensuite bath boasting granite countertops, a soaking tub, and a walk-in shower. A comfortable second bedroom and full bath-also with granite-provide space for guests or hobbies. The convenient laundry room is located just off the attached 2-car garage, which offers additional storage. Towne Center residents enjoy fantastic amenities including a community center with an indoor pool, exercise room, library, and a full calendar of social activities. Located close to Lake Erie, beautiful parks, restaurants, and shopping, this is the perfect place to enjoy maintenance-free living. Don't miss your chance to call this home-schedule your private showing today and say goodbye to grass cutting and snow blowing!

Listing Tools

Property Details of 34 Community Drive

Property Details

Interior Features

Community

Map Location

Based on information submitted to MLS Now as of November 14, 2025 9:21 PM EST . All data is deemed reliable but is not guaranteed accurate by the MLS. All information should be independently reviewed and verified for accuracy. Listing information is provided exclusively for consumers’ personal, noncommercial use and may not be used for any purpose other than to identify prospective properties consumers may be interested in purchasing.

Hi there! How can we help you?

Contact us using the form below or give us a call.

Send Us A Message:

I agree to receive marketing and customer service calls and text messages from The Marrali-DeSantis Group | Howard Hanna Real Estate. To opt out, you can reply 'stop' at any time or click the unsubscribe link in the emails. Consent is not a condition of purchase. Msg/data rates may apply. Msg frequency varies. Privacy Policy.

Do not fill in this field:

This site is protected by reCAPTCHA and the Google Privacy Policy and Terms of Service apply.

Hi there! How can we help you?

Contact us using the form below or give us a call.

Send Us A Message:

Do not fill in this field:

This site is protected by reCAPTCHA and the Google Privacy Policy and Terms of Service apply.

Hi there! How can we help you?

Contact us using the form below or give us a call.

Send Us A Message:

Do not fill in this field:

This site is protected by reCAPTCHA and the Google Privacy Policy and Terms of Service apply.

Do not fill in this field:

This site is protected by reCAPTCHA and the Google Privacy Policy and Terms of Service apply.

Do not fill in this field:

This site is protected by reCAPTCHA and the Google Privacy Policy and Terms of Service apply.

Do not fill in this field:

This site is protected by reCAPTCHA and the Google Privacy Policy and Terms of Service apply.

$

Do not fill in this field:

This site is protected by reCAPTCHA and the Google Privacy Policy and Terms of Service apply.