Listed by Eric T Wachtel of Howard Hanna (EricWachtel@HowardHanna.com,330-328-2862)
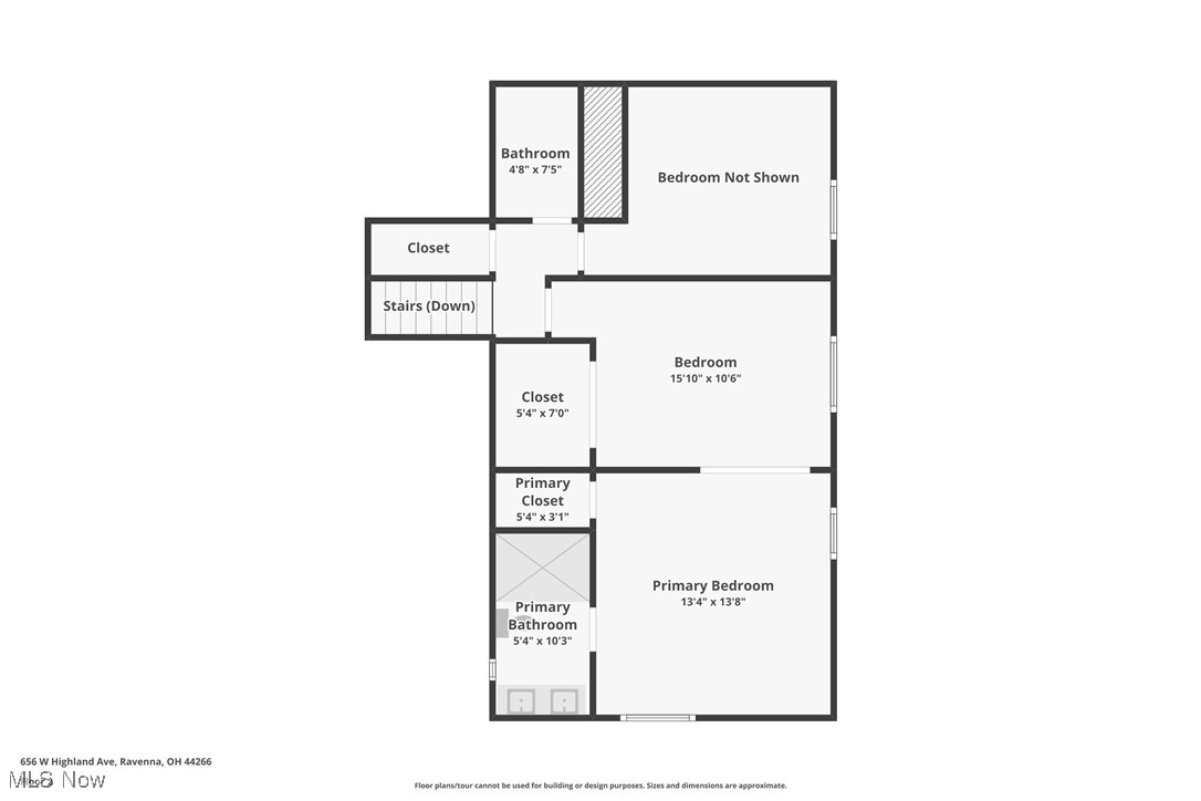
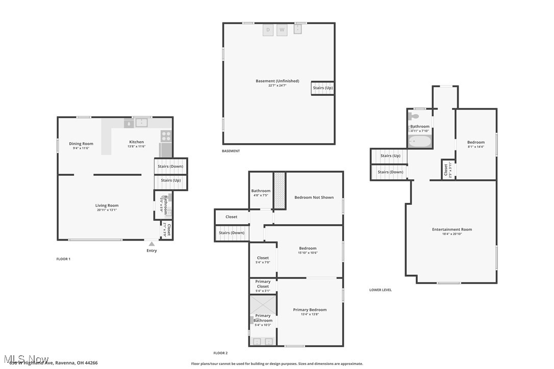
Spacious fully updated Split Level offers 3 bedrooms 3-1/2 baths and so many new updates. The entry level greets you into the back foyer/hallway with bedroom or office/den, newly updated full bath, and the very large rec room. All new LVT vinyl flooring, drywall/paint, ceilings, lighting, electical, windows... the works! Up a short flight of stairs to the new kitchen redone from the studs, loads of butcher-block counters, cabinets, large country sink, LVT vinyl floor, ceiling fan, and appliances (new fridge, stove, microwave, dishwasher). Large living room with picture new multi section window along with spacious dining connects with kitchen. Main floor offers half bath as well. Living and dining rooms enjoy lovely redone wood floors that continue to the third level hall and bedrooms. Up to 3rd level are the large bedrooms. One owner suite offers en-suite bath updated from the studs with beautiful walk-in shower, vinyl flooring. Also 3rd floor common bathroom, fully redone from the studs also with vinyl flooring and tub/shower. Off the owner-suite is a bonus room great as a sitting room, dressing room, office, or other as needed. The large lower level has space for laundry, utilities, storage or other use, with two sump pumps. Add the 2-car detached plus large drive, back yard, and you've got a great package. Exterior painted summer 2025, soffit/fascia & gutters redone 2025, garage resided 2025. Come see all the great "like new" space 656 Highland offers!

Listing Tools

Property Details of 656 W Highland Avenue

Property Details

Interior Features

Community

Map Location

Based on information submitted to MLS Now as of February 13, 2026 11:26 PM EST . All data is deemed reliable but is not guaranteed accurate by the MLS. All information should be independently reviewed and verified for accuracy. Listing information is provided exclusively for consumers’ personal, noncommercial use and may not be used for any purpose other than to identify prospective properties consumers may be interested in purchasing.

Hi there! How can we help you?

Contact us using the form below or give us a call.

Send Us A Message:

I agree to be contacted by The Marrali-DeSantis Group | Howard Hanna Real Estate via call, email, and text for real estate services. To opt out, you can reply 'stop' at any time or reply 'help' for assistance. You can also click the unsubscribe link in the emails. Message and data rates may apply. Message frequency may vary. Privacy Policy.

Do not fill in this field:

This site is protected by reCAPTCHA and the Google Privacy Policy and Terms of Service apply.

Hi there! How can we help you?

Contact us using the form below or give us a call.

Send Us A Message:

Do not fill in this field:

This site is protected by reCAPTCHA and the Google Privacy Policy and Terms of Service apply.

Hi there! How can we help you?

Contact us using the form below or give us a call.

Send Us A Message:

Do not fill in this field:

This site is protected by reCAPTCHA and the Google Privacy Policy and Terms of Service apply.

Do not fill in this field:

This site is protected by reCAPTCHA and the Google Privacy Policy and Terms of Service apply.

Do not fill in this field:

This site is protected by reCAPTCHA and the Google Privacy Policy and Terms of Service apply.

Do not fill in this field:

This site is protected by reCAPTCHA and the Google Privacy Policy and Terms of Service apply.

$

Do not fill in this field:

This site is protected by reCAPTCHA and the Google Privacy Policy and Terms of Service apply.